Описание продукции

◆ Вся машина имеет компактную структуру и подходит для работы на всех видах забойных дорожек.
◆ Анкерная буровая установка смонтирована сзади, поэтому работы по копанию и поддержке не влияют друг на друга.
◆ Основные компоненты - это фитинги всемирно известных брендов, таких как Power Pipe, Parker и других марок.
◆ Применяется технология автоматического позиционирования машины, которая отличается высокой точностью и стабильностью работы.
◆ Режущая головка может быть выбрана в зависимости от условий работы, что повышает эффективность копания и снижает стоимость строительства.
◆ Анкерная система отвечает требованиям полноразмерной эксплуатации и оснащена высокомоментными буровыми установками, что обеспечивает большую площадь системы и высокую безопасность.
◆ Быстро открывающийся электрический блок управления оснащен функцией индикации неисправностей, что делает обслуживание более удобным.
◆ Система стабилизирована за счет использования технологии постоянной мощности, резки давления и чувствительного к нагрузке управления.
◆ Он оснащен самой передовой в отрасли интеллектуальной системой управления, которая обеспечивает дистанционное управление проходческим комбайном и функцию автоматической резки.
◆ Две независимые системы для копания и закрепления управляются отдельно, с интеллектуальным электрическим управлением и функциями дистанционного управления.
◆ Доступны различные конфигурации лопат для удовлетворения потребностей дорог различной ширины.
◆ Высокопрочная плита Q460 используется в основных деталях для повышения жесткости лопаты, а высокопрочная износостойкая плита продлевает срок службы.
Технический параметр

| Параметры машины | Ценность |
|---|---|
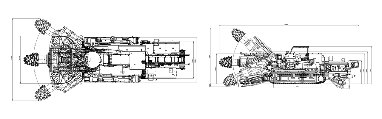
| Длина машины | 12560mm |
| Ширина всей машины | машина:3400mm Доска для лопат:3600/4200mm |
| Высота машины | машина:2400mm Самая высокая точка:2850mm |
| Глубина под землей | 270mm |
| Диапазон резания | 5200mm *6000mm |
| Количество буров для скальных пород | 2 |
| Адаптация к углу наклона | ±18° |
| Давление гусениц на грунт | 0.16MPa |
| Общая мощность | 420KW |
| Мощность двигателя резака | 260KW |
| Мощность двигателя насосной станции | 160KW |
| Рабочее напряжение | AC1140V |
| Общий вес | 100T |











